?html>大连长兴岛港口投资发展有限公司原油库区一期工程配套管廊带项目、消防泵站项目、调度指挥中心及消防站项目规划公?大连长兴岛经济区
中国大连  
区域概况 | 政务公开 | 政策文件 | 央网信息 | 省政府信?/span> | 网上调查 | 总理记者会
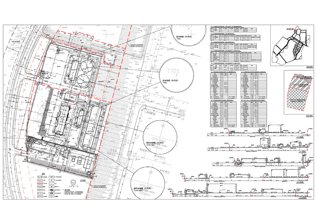
大连长兴岛港口投资发展有限公司原油库区一期工程配套管廊带项目、消防泵站项目、调度指挥中心及消防站项目规划公?
发布日期?018?6?6?/span>   (点击次数)
打印收藏 关闭  

   编号?018大长规GB?09?

项目名称:大连长兴岛港口投资发展有限公司原油库区一期工程配套管廊带项目、消防泵站项目、调度指挥中心及消防站项?/P>

设计单位:中国建筑东北设计研究院有限公司

建设单位:大连长兴岛港口投资发展有限公司

详规号:详审字[2018]?06?/P>

方案号:方审字[2018]?06?/P>

公告期:      至建设项目规划核实合格之?/P>

联系电话?5283683

                                                                                                       大连长兴岛经济区规划

2018??6?/FONT>

附件?a href="/html/zwgk..infonewscontent......system_contentdownload.jspowner728718381&url2018%2F06%2F26%2Fbp57ifbg31.vsb%3A20180530_%E8%AF%A6%E8%A7%84-Model.jpg.html">20180530_详规-Model.jpg?/span>
附件?a href="/html/zwgk..infonewscontent......system_contentdownload.jspowner728718381&url2018%2F06%2F26%2Fqxr21lbg32.vsb%3A18009%E5%A4%A7%E8%BF%9E%E6%B8%AF%E7%BB%BC%E5%90%88%E9%85%8D%E5%A5%97-2.doc.html">18009大连港综合配?2.doc?/span>

责任编辑:孙国强    来源:规划局

© 2007辽ICP?2007685 辽公网安?21022002000003?
2007 ©COPY RIGHT 大连长兴岛经济区 版权所?     网站标识码:2102920002
主办单位:大连长兴岛经济区管理委员会    承办单位:大连长兴岛经济区管理委员会办公?
地址:大连长兴岛经济区长兴路600?邮编?16317 电话?5280011